7階は現在募集がありません
2フロア募集区画あり

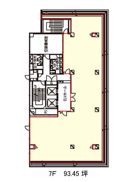
麹町ビル 7階

前の写真 次の写真

物件概要

物件番号

385-00099-60

物件名

麹町ビル

所在地

面積

93.45坪

賃料(共益費含)


入居日

募集終了

保証金

礼金

更新料

償却費

竣工

1988年7月

構造

SRC

規模

地上7階/地下1階

トイレ

男女別

空調

セントラル+個別空調

エレベーター

セキュリティ

駐車場

耐震

新耐震基準

基準階天井高

2500mm

空室延床面積

242.12坪

最寄駅

情報更新日

2026/05/01

麹町ビルのテナント募集中区画

階数 面積 賃料(共益費含む) 保証金 入居可能日 検討リスト 詳細
B1⑥・2F 158.39坪 応相談(応相談) 応相談 2026年10月
1 83.73坪 応相談(応相談) 応相談 2026年11月
…新着物件

麹町ビルのアクセス

麹町ビルの物件情報

麹町ビル(千代田区九段南)は市ヶ谷駅(A3番出口)から徒歩5分の賃貸オフィスです。
JR中央線・総武線、東京メトロ南北線・有楽町線、都営新宿線を有する市ヶ谷駅より徒歩5分の靖国通りから少し入った二七通りに面した角地です。7階建てでグレーのタイル張りの外壁が重厚感があり、1階部分は全面ガラス張りになっている視認性の高いビルです。室内は床がフリーアクセスのためレイアウトはしやすいでしょう。周辺には飲食店が多く立ち並び、ランチやディナー・お仕事帰りの一杯にも不便しないことでしょう。
麹町ビルは市ヶ谷駅(A3番出口)の他に半蔵門駅(5番出口)徒歩11分、九段下駅(1番出口)徒歩12分で利用も可能です。

近隣のエリア・駅から探す