麹町ビル 3階
物件概要
物件番号
385-00099-65物件名
麹町ビル所在地
- 東京都千代田区九段南3-3-6
- アクセスマップ
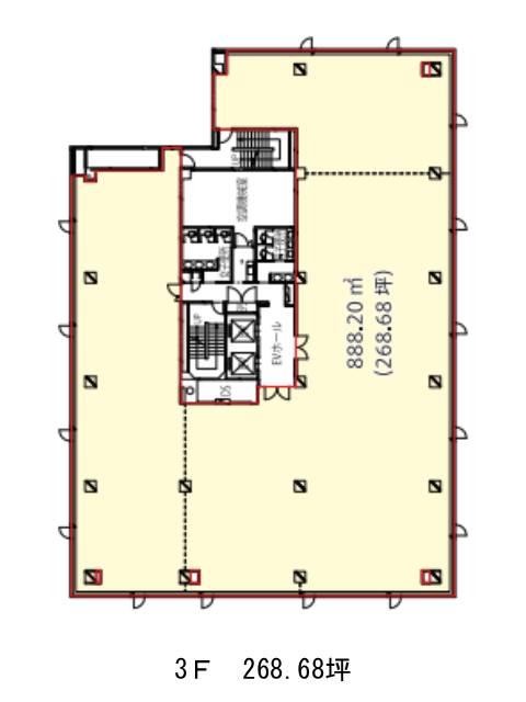
面積
268.68坪賃料(共益費含)
:応相談応相談
入居日
2026年2月上旬保証金
応相談礼金
なし更新料
なし償却費
なし竣工
1988年7月構造
SRC規模
地上7階/地下1階トイレ
男女別空調
セントラル+個別空調エレベーター
有セキュリティ
駐車場
有耐震
新耐震基準基準階天井高
2500mm空室延床面積
268.68坪情報更新日
2025/12/01麹町ビルのテナント募集中区画
| 階数 | 面積 | 賃料(共益費含む) | 保証金 | 入居可能日 | 検討リスト | 詳細 |
|---|---|---|---|---|---|---|
| 3 | 268.68坪 | 応相談(応相談) | 応相談 | 2026年2月上旬 |
…新着物件
アクセス
麹町ビルの物件情報
麹町ビル(千代田区九段南)は市ヶ谷駅(A3番出口)から徒歩5分の賃貸オフィスです。JR中央線・総武線、東京メトロ南北線・有楽町線、都営新宿線を有する市ヶ谷駅より徒歩5分の靖国通りから少し入った二七通りに面した角地です。7階建てでグレーのタイル張りの外壁が重厚感があり、1階部分は全面ガラス張りになっている視認性の高いビルです。室内は床がフリーアクセスのためレイアウトはしやすいでしょう。周辺には飲食店が多く立ち並び、ランチやディナー・お仕事帰りの一杯にも不便しないことでしょう。麹町ビルは市ヶ谷駅(A3番出口)の他に半蔵門駅(5番出口)徒歩11分、九段下駅(1番出口)徒歩12分で利用も可能です。

