麹町ビルのテナント募集中区画
| 階数 | 面積 | 賃料(共益費含む) | 保証金 | 入居可能日 | 検討リスト | 詳細 |
|---|---|---|---|---|---|---|
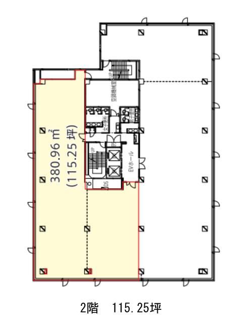
| 3 | 268.68坪 | 応相談(応相談) | 応相談 | 2026年2月上旬 |
…新着物件
アクセス
麹町ビルの物件情報
麹町ビル(千代田区九段南)は市ヶ谷駅(A3番出口)から徒歩5分の賃貸オフィスです。
JR中央線・総武線、東京メトロ南北線・有楽町線、都営新宿線を有する市ヶ谷駅より徒歩5分の靖国通りから少し入った二七通りに面した角地です。7階建てでグレーのタイル張りの外壁が重厚感があり、1階部分は全面ガラス張りになっている視認性の高いビルです。室内は床がフリーアクセスのためレイアウトはしやすいでしょう。周辺には飲食店が多く立ち並び、ランチやディナー・お仕事帰りの一杯にも不便しないことでしょう。
麹町ビルは市ヶ谷駅(A3番出口)の他に半蔵門駅(5番出口)徒歩11分、九段下駅(1番出口)徒歩12分で利用も可能です。

