3階は現在募集がありません
アリビオ九段 3階
物件概要
アリビオ九段のテナント募集中区画
現在、空室がございません。
アクセス
アリビオ九段の物件情報
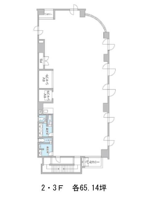
アリビオ九段(千代田区九段北)は九段下駅(7番出口)から徒歩3分の賃貸オフィスです。地上9階地下1階建てSRC造、2004年竣工のビルです。茶色い壁面と白い壁面を組み合わせた、特徴的な外観をしています。角地に建ち、視認性の良い物件です。基準階面積は65.14坪。中規模のオフィスをお求めの方によいでしょう。貸室は無柱空間で機器やデスクのレイアウトがしやすいでしょう。設備仕様として、EV・駐車場・機械警備・OAフロア・男女別トイレがそろいます。周辺は飲食店やドラッグストアが充実し、普段使いに良いでしょう。アリビオ九段は九段下駅(7番出口)の他に神保町駅(A2番出口)徒歩5分、飯田橋駅(A5番出口)徒歩10分で利用も可能です。

