は現在募集がありません
サンブリッジ九段ビル
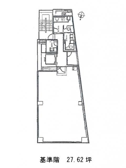
物件概要
サンブリッジ九段ビルのテナント募集中区画
現在、空室がございません。
アクセス
サンブリッジ九段ビルの物件情報
サンブリッジ九段ビル(千代田区九段北)は九段下駅(7番出口)から徒歩2分の賃貸オフィスです。サンブリッジ九段ビルは九段下駅(7番出口)の他に飯田橋駅(A5番出口)徒歩7分、神保町駅(A2番出口)徒歩8分で利用も可能です。

