5階は現在募集がありません
愛光舎ビル 5階
物件概要
愛光舎ビルのテナント募集中区画
現在、空室がございません。
アクセス
愛光舎ビルの物件情報
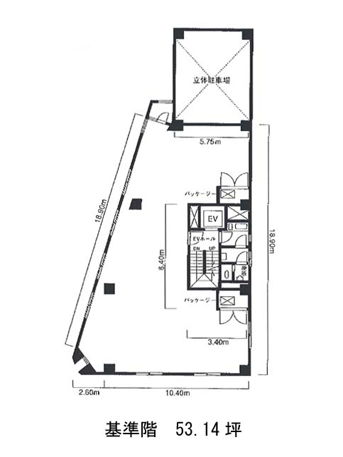
愛光舎ビル(千代田区神田三崎町)は水道橋駅(東口)から徒歩2分の賃貸オフィスです。地上10階建て、白山通りの角地に面しています。外観はブロンズのパネル張りで、1~2階では飲食店が入居中です。基準階面積は約53坪、貸室はコの字型に近い特徴的な形です。ビルの主な設備として個別空調、光ケーブルを備え、エレベーターと男女別トイレは室外にまとまっています。また、立体駐車場を併設していますので、車が必要な場合にも便利でしょう。周辺にはバラエティ豊かな飲食店が軒を連ねます。また、駅の反対側には東京ドームや小石川後楽園が立地しています。愛光舎ビルは水道橋駅(東口)の他に神保町駅(A4番出口)徒歩9分、御茶ノ水駅(御茶ノ水橋口)徒歩10分で利用も可能です。

