5階は現在募集がありません
TUG-Iビル 5階
物件概要
TUG-Iビルのテナント募集中区画
現在、空室がございません。
アクセス
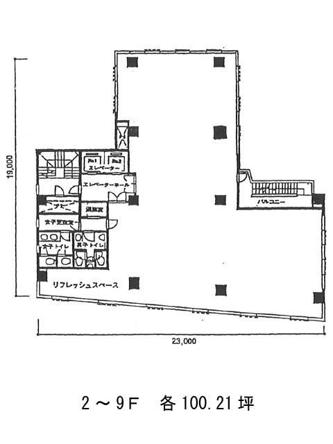
TUG-Iビルの物件情報
TUG-Iビル(千代田区神田三崎町)は水道橋駅(西口)から徒歩5分の賃貸オフィスです。水道橋西通りの三崎町二丁目交差点を曲がった二軒目あります。すっきりとしたベージュの外壁と大きな窓が横一面に広がり、建物自体も大きく視認性の高いビルです。下層階はハイグレードなオフィスビル、上層階の10階11階は住居タイプです。床はレイアウトの組みやすいフリーアクセスになっています。周辺には大学なども複数あり、多くの学生が行き交うエリアです。近くには飲食店も集まっているので、ランチタイムはお店選びに困らないでしょう。徒歩圏内にはコンビニも複数あるので、利用する際は便利です。TUG-Iビルは水道橋駅(西口)の他に神保町駅(A2番出口)徒歩7分、九段下駅(7番出口)徒歩9分で利用も可能です。

