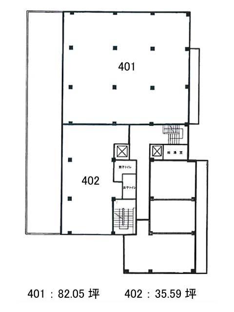
4階 401は現在募集がありません
水道橋西口会館 4階 401
物件概要
水道橋西口会館のテナント募集中区画
現在、空室がございません。
アクセス
水道橋西口会館の物件情報
水道橋西口会館(千代田区神田三崎町)は水道橋駅(西口)から徒歩2分の賃貸オフィスです。都心の主要駅それぞれへアクセス良い水道橋駅が最寄りのため、利便性の高い魅力的なビルといえるでしょう。エントランスや、フロア内の窓は、大きなガラスを採用しております。比較的、ビル全体で光を採りやすい工夫が凝らされています。エレベーターが2基備わっていて、男女のトイレが別々となっており、駐車場も完備しております。多種多様な飲食店が付近で営業されております。従業員のランチやディナーは、充実したラインナップとなりそうです。水道橋西口会館は水道橋駅(西口)の他に飯田橋駅(C2番出口)徒歩9分、神保町駅(A2番出口)徒歩10分で利用も可能です。

