神田三崎町ビルのテナント募集中区画
| 階数 | 面積 | 賃料(共益費含む) | 保証金 | 入居可能日 | 検討リスト | 詳細 |
|---|---|---|---|---|---|---|
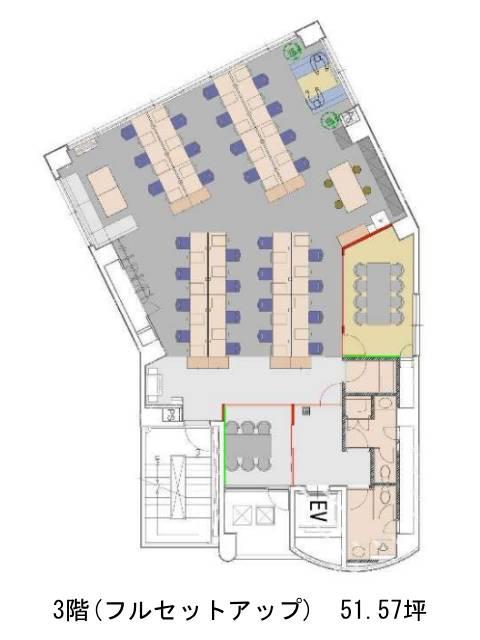
| 7 | 51.57坪 | 1,021,086円/月(19,800円/坪) | 556万円 | 即 |
…新着物件
神田三崎町ビルのアクセス
神田三崎町ビルの物件情報
神田三崎町ビル(千代田区神田三崎町)は水道橋駅(西口)から徒歩2分の賃貸オフィスです。最寄駅から徒歩2分という好立地な物件。1992年施工ですが、綺麗に整えられた内装がこのビルの特徴となっており、フロア、お手洗い、給湯スペースなど各所が新築のビルと同様に快適に過ごすことができるでしょう。エレベータは1基搭載。基準階坪数は約50坪。フロア内に支柱がございませんので、全体を見渡せて広々とした印象を持たせることも可能です。個別空調完備、男女別のトイレ設置となっております。付近には飲食店やコンビニが多く、働きやすい環境が整っております。神田三崎町ビルは水道橋駅(西口)の他に飯田橋駅(A5番出口)徒歩7分、後楽園駅(2番出口)徒歩11分で利用も可能です。

