5階は現在募集がありません
2フロア募集区画あり

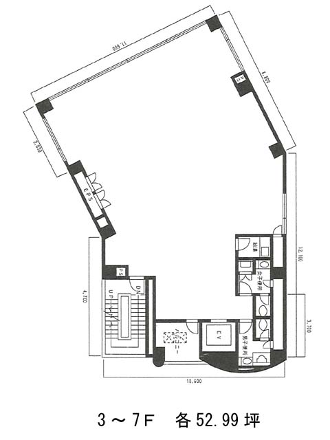
神田三崎町ビル 5階

前の写真 次の写真

物件概要

物件番号

389-00067-60

物件名

神田三崎町ビル

所在地

面積

52.99坪

賃料(共益費含)


入居日

募集終了

保証金

礼金

更新料

償却費

竣工

1992年11月

構造

SRC

規模

地上7階/地下1階

トイレ

男女別

空調

個別空調

エレベーター

セキュリティ

駐車場

耐震

新耐震基準

基準階天井高

2500mm

空室延床面積

103.14坪

最寄駅

情報更新日

2025/11/17

神田三崎町ビルのテナント募集中区画

階数 面積 賃料(共益費含む) 保証金 入居可能日 検討リスト 詳細
5 51.57坪 1,361,448円/月(26,400円/坪) 742万円
7 51.57坪 1,021,086円/月(19,800円/坪) 556万円
…新着物件

アクセス

神田三崎町ビルの物件情報

神田三崎町ビル(千代田区神田三崎町)は水道橋駅(西口)から徒歩2分の賃貸オフィスです。
最寄駅から徒歩2分という好立地な物件。1992年施工ですが、綺麗に整えられた内装がこのビルの特徴となっており、フロア、お手洗い、給湯スペースなど各所が新築のビルと同様に快適に過ごすことができるでしょう。エレベータは1基搭載。基準階坪数は約50坪。フロア内に支柱がございませんので、全体を見渡せて広々とした印象を持たせることも可能です。個別空調完備、男女別のトイレ設置となっております。付近には飲食店やコンビニが多く、働きやすい環境が整っております。
神田三崎町ビルは水道橋駅(西口)の他に飯田橋駅(A5番出口)徒歩7分、後楽園駅(2番出口)徒歩11分で利用も可能です。

近隣のエリア・駅から探す