TKiビル 5階
物件概要
物件番号
389-00069-40物件名
TKiビル所在地
- 東京都千代田区神田三崎町3-3-1
- アクセスマップ
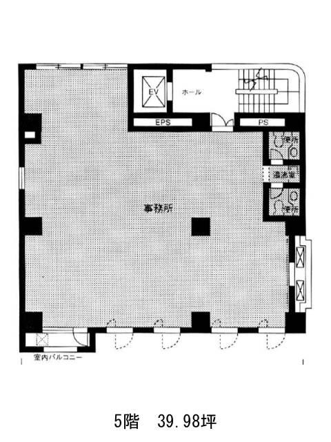
面積
39.98坪賃料(共益費含)
月額659,668円(16,500円/坪)
入居日
即保証金
5,757,120円礼金
なし更新料
なし償却費
1ケ月竣工
1990年11月構造
SRC規模
地上8階/地下2階トイレ
男女別空調
個別空調エレベーター
有セキュリティ
有駐車場
無耐震
新耐震基準基準階天井高
2400mm空室延床面積
83.38坪情報更新日
2026/02/05TKiビルのテナント募集中区画
| 階数 | 面積 | 賃料(共益費含む) | 保証金 | 入居可能日 | 検討リスト | 詳細 |
|---|---|---|---|---|---|---|
| 4 | 43.40坪 | 716,100円/月(16,500円/坪) | 624万円 | 2026年4月 | ||
| 5 | 39.98坪 | 659,668円/月(16,500円/坪) | 575万円 | 即 |
…新着物件
TKiビルのアクセス
TKiビルの物件情報
TKiビル(千代田区神田三崎町)は水道橋駅(西口)から徒歩4分の賃貸オフィスです。外観は赤茶色の石造りでとても上品な雰囲気。エントランス部分のみ同系色ながら造りの違う石を用いるなど、デザイン性が高く洗練されています。オフィスビルですが、どこか高級マンションのような雰囲気も感じられます。基準階は43.40坪。お手洗いは男女別で室内に設置済みです。その他フリーアクセス有、オートロック付で設備も整っています。
最寄はJR水道橋で西口・東口どちらも利用可能です。西口方面はリーズナブルな飲食店、東口方面はお酒と共に楽しめる飲食店が多い印象です。TKiビルは水道橋駅(西口)の他に神保町駅(A2番出口)徒歩8分、九段下駅(7番出口)徒歩9分で利用も可能です。

