原島本店ビル 3階
物件概要
物件番号
389-00089-30物件名
原島本店ビル所在地
- 東京都千代田区神田三崎町3-6-5
- アクセスマップ
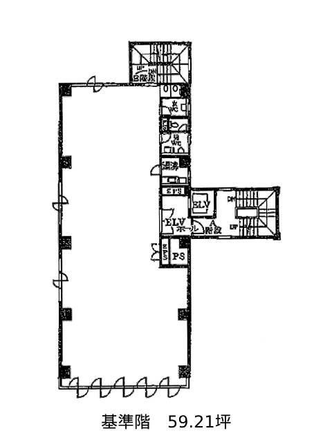
面積
59.21坪賃料(共益費含)
月額716,441円(12,100円/坪)
入居日
即保証金
5,210,480円礼金
なし更新料
新1ケ月償却費
2ケ月竣工
1986年11月構造
RC規模
地上7階トイレ
男女別空調
個別空調エレベーター
有セキュリティ
有駐車場
無耐震
新耐震基準基準階天井高
空室延床面積
59.21坪情報更新日
2026/03/02原島本店ビルのテナント募集中区画
| 階数 | 面積 | 賃料(共益費含む) | 保証金 | 入居可能日 | 検討リスト | 詳細 |
|---|---|---|---|---|---|---|
| 3 | 59.21坪 | 716,441円/月(12,100円/坪) | 521万円 | 即 |
…新着物件
原島本店ビルのアクセス
原島本店ビルの物件情報
原島本店ビル(千代田区神田三崎町)は水道橋駅(西口)から徒歩3分の賃貸オフィスです。最寄り駅からのアクセスが良く、利便性の高さが光る当ビルは、神田三崎町エリアの一角に構える地上6階建ての物件です。外観はベージュトーンのタイル貼りで、すっきりとした印象。
基準階は約59坪、長方形に近い整形の間取りが特徴です。執務空間は無柱のため、フレキシブルなレイアウトが可能。
コンパクトながら、エレベーターホールからワンクッション設けた貸室動線となっており、来客対応にも配慮された設計です。水回りは室内に集約されているため、貸室内で完結した動線がとりやすいのもポイント。各フロアは1テナント専有の構成で、落ち着いた執務環境をお求めの方にもおすすめです。
周辺には飲食店が多く、ランチには困らない便利な立地。また、近隣に時間貸し駐車場が複数点在しており、車利用や来客の多い企業にもフィットします。日々の働きやすさを支える条件が整った一棟です。原島本店ビルは水道橋駅(西口)の他に飯田橋駅(A5番出口)徒歩8分、九段下駅(7番出口)徒歩10分で利用も可能です。

