原島本店ビルのテナント募集中区画
| 階数 | 面積 | 賃料(共益費含む) | 保証金 | 入居可能日 | 検討リスト | 詳細 |
|---|---|---|---|---|---|---|
| 3 | 59.21坪 | 846,703円/月(14,300円/坪) | 461万円 | 即 |
…新着物件
アクセス
原島本店ビルの物件情報
原島本店ビル(千代田区神田三崎町)は水道橋駅(西口)から徒歩3分の賃貸オフィスです。最寄り駅からのアクセスが良く、利便性の高さが光る当ビルは、神田三崎町エリアの一角に構える地上6階建ての物件です。外観はベージュトーンのタイル貼りで、すっきりとした印象。
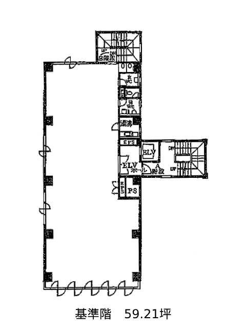
基準階は約59坪、長方形に近い整形の間取りが特徴です。執務空間は無柱のため、フレキシブルなレイアウトが可能。
コンパクトながら、エレベーターホールからワンクッション設けた貸室動線となっており、来客対応にも配慮された設計です。水回りは室内に集約されているため、貸室内で完結した動線がとりやすいのもポイント。各フロアは1テナント専有の構成で、落ち着いた執務環境をお求めの方にもおすすめです。
周辺には飲食店が多く、ランチには困らない便利な立地。また、近隣に時間貸し駐車場が複数点在しており、車利用や来客の多い企業にもフィットします。日々の働きやすさを支える条件が整った一棟です。原島本店ビルは水道橋駅(西口)の他に飯田橋駅(A5番出口)徒歩8分、九段下駅(7番出口)徒歩10分で利用も可能です。

