7階は現在募集がありません
1フロア募集区画あり

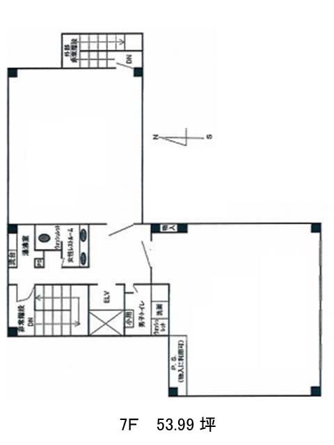
高橋ビル 7階

前の写真 次の写真

物件概要

物件番号

402-00109-73

物件名

高橋ビル

所在地

面積

53.99坪

賃料(共益費含)


入居日

募集終了

保証金

礼金

更新料

償却費

竣工

1975年5月

構造

SRC

規模

地上9階

トイレ

男女別

空調

個別空調

エレベーター

セキュリティ

駐車場

耐震

旧耐震基準

基準階天井高

2450mm

空室延床面積

28.28坪

最寄駅

情報更新日

2026/01/22

高橋ビルのテナント募集中区画

階数 面積 賃料(共益費含む) 保証金 入居可能日 検討リスト 詳細
2 28.28坪 513,282円/月(18,150円/坪) 316万円 2026年8月上旬
…新着物件

高橋ビルのアクセス

高橋ビルの物件情報

高橋ビル(千代田区神田神保町)は神保町駅(A2番出口)から徒歩2分の賃貸オフィスです。
高橋ビルは神保町駅(A2番出口)の他に九段下駅(6番出口)徒歩5分、竹橋駅(1b番出口)徒歩9分で利用も可能です。

近隣のエリア・駅から探す