4階は現在募集がありません
2フロア募集区画あり
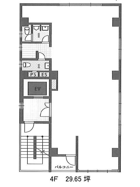
NOVEL WORK Jinbocho 4階
物件概要
物件番号
402-00115-40物件名
NOVEL WORK Jinbocho所在地
- 東京都千代田区神田神保町2-8-20
- アクセスマップ
面積
29.65坪賃料(共益費含)
−入居日
募集終了保証金
−礼金
−更新料
−償却費
−竣工
1986年3月構造
SRC規模
地上6階トイレ
男女別空調
個別空調エレベーター
有セキュリティ
有駐車場
無耐震
新耐震基準基準階天井高
2820mm空室延床面積
80.64坪情報更新日
2026/02/10NOVEL WORK Jinbochoのテナント募集中区画
| 階数 | 面積 | 賃料(共益費含む) | 保証金 | 入居可能日 | 検討リスト | 詳細 |
|---|---|---|---|---|---|---|
| 5-6F | 50.25坪 | 1,381,875円/月(27,500円/坪) | 応相談 | 即 | ||
| 3 | 30.39坪 | 869,154円/月(28,600円/坪) | 790万円 | 相談 |
…新着物件
NOVEL WORK Jinbochoのアクセス
NOVEL WORK Jinbochoの物件情報
NOVEL WORK Jinbocho(千代田区神田神保町)は神保町駅(A2番出口)から徒歩3分の賃貸オフィスです。エントランスや共用部、貸室のリニューアルを実施済みの物件。現代仕様にアップデートされています。
貸室は1フロアあたり約20〜30坪のコンパクトサイズ。セットアップ区画の用意もあり(※募集時期により内容が異なるため、都度ご確認ください)、会議室・ラウンジ・ブース席などを完備したレイアウトプランも魅力的です。
木目調の温かみある内装と、観葉植物やグリーンアクセントを取り入れたデザインは、落ち着きと開放感を演出し、クリエイティブな発想を刺激する空間を創出しています。
また、1階には飲食店舗が併設されており、来客時やランチタイムにも便利。周辺にはカフェや書店などが点在し、知的で落ち着いた街並みに調和するロケーションも特徴です。NOVEL WORK Jinbochoは神保町駅(A2番出口)の他に九段下駅(6番出口)徒歩7分、水道橋駅(東口)徒歩9分で利用も可能です。

