久月神田ビルのテナント募集中区画
| 階数 | 面積 | 賃料(共益費含む) | 保証金 | 入居可能日 | 検討リスト | 詳細 |
|---|---|---|---|---|---|---|
| 6 | 55.56坪 | 応相談(応相談) | 応相談 | 即 | ||
| 7 | 55.55坪 | 応相談(応相談) | 応相談 | 2026年3月上旬 | ||
| 8 | 55.52坪 | 応相談(応相談) | 応相談 | 2026年3月上旬 |
…新着物件
久月神田ビルのアクセス
久月神田ビルの物件情報
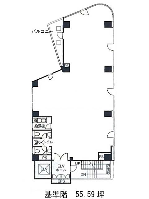
久月神田ビル(千代田区神田神保町)は神保町駅(A2番出口)から徒歩2分の賃貸オフィスです。1988年竣工、靖国通り(専大通り)沿いに立地する地上8階建てです。白く光沢のある外壁に清潔感を感じる外観で、角地に沿ってカーブする形が特徴的です。1階ではコンビニが営業中ですので、軽食や飲み物の調達に便利です。貸室には柱がなく窓が多いため、明るく開放的な雰囲気。室内の一角に置かれた水回り設備は2015年に改修済みですので、快適にお使いいただけると思います。その他の設備としては、エレベーター1基、空調はゾーンごとの個別空調、床はOAフロア仕様、光ケーブルを引き込み済みです。周辺には飲食店が充実し、郵便局や銀行も近いため、お仕事にもリフレッシュにも困らないでしょう。久月神田ビルは神保町駅(A2番出口)の他に九段下駅(6番出口)徒歩6分、竹橋駅(1b番出口)徒歩9分で利用も可能です。

