Takebashi7 4階
物件概要
Takebashi7のテナント募集中区画
| 階数 | 面積 | 賃料(共益費含む) | 保証金 | 入居可能日 | 検討リスト | 詳細 |
|---|---|---|---|---|---|---|
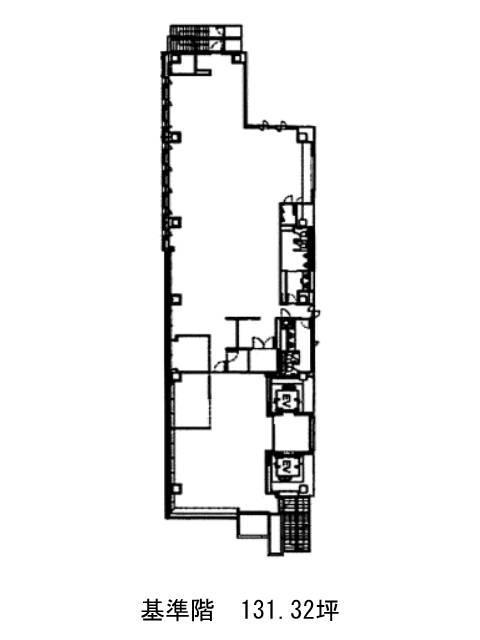
| 3 | 131.32坪 | 応相談(応相談) | 応相談 | 即 | ||
| 4 | 131.32坪 | 応相談(応相談) | 応相談 | 即 |
…新着物件
アクセス
Takebashi7の物件情報
Takebashi7(千代田区神田神保町)は神保町駅(A1番出口)から徒歩4分の賃貸オフィスです。2020年竣工、地上9階建て。代田区役所の斜向かいという視認性の高い立地で、周囲にはカフェやコンビニ、郵便局などが点在し、日常の利便性も確保されています。
基準階は約131坪の整形無柱空間で、天井高は2,700mmと開放感があります。個別空調やOAフロア、男女別トイレ(室外)など、快適な執務環境を支える設備が整っています。また、エレベーターは17人乗りが2基設置されており、混雑緩和にも配慮されています。
セキュリティ面では、オートロックや機械警備を採用し、24時間の入退館が可能です。また、駐車場も完備されており、車での通勤にも対応可能です。
周辺にはカフェや飲食店、コンビニが多数点在しており、ランチやちょっとした買い物にも便利な立地です。神保町の文化的な雰囲気と利便性を兼ね備えたこの物件は、快適なオフィス環境を求める企業にとって魅力的な選択肢となるでしょう。
また、出版関連企業が多く集まるエリアのため、編集・制作・印刷業などとの連携が取りやすい点も、本物件の大きな魅力のひとつです。
Takebashi7は神保町駅(A1番出口)の他に九段下駅(6番出口)徒歩5分、竹橋駅(1b番出口)徒歩8分で利用も可能です。

