21階 21Dは現在募集がありません
8フロア募集区画あり

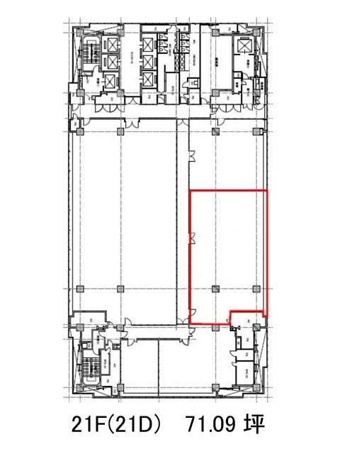
大成大手町ビル 21階 21D

前の写真 外観①(メイン) 次の写真

物件概要

物件番号

419-00001-470

物件名

大成大手町ビル

所在地

面積

71.09坪

賃料(共益費含)


入居日

募集終了

保証金

礼金

更新料

償却費

竣工

1994年2月

構造

SRC

規模

地上27階/地下5階

トイレ

男女別

空調

セントラル

エレベーター

セキュリティ

駐車場

耐震

新耐震基準

基準階天井高

2700mm

空室延床面積

1515.47坪

最寄駅

情報更新日

2025/10/20

大成大手町ビルのテナント募集中区画

階数 面積 賃料(共益費含む) 保証金 入居可能日 検討リスト 詳細
1-2 471.01坪 応相談(応相談) 応相談 2026年6月上旬
3 330.22坪 応相談(応相談) 応相談 2026年6月上旬
5 118.51坪 応相談(応相談) 応相談 2026年6月上旬
5 54.84坪 応相談(応相談) 応相談 2026年6月上旬
5 131.52坪 応相談(応相談) 応相談 2026年6月上旬
7 47.02坪 応相談(応相談) 応相談
17 333.00坪 応相談(応相談) 応相談 2026年6月上旬
20 29.35坪 応相談(応相談) 応相談 2026年2月上旬
…新着物件

アクセス

大成大手町ビルの物件情報

大成大手町ビル(千代田区大手町)は大手町駅(A5番出口)から徒歩1分の賃貸オフィスです。
1994年竣工で、地上27階の新耐震基準に適合したビルでございます。2011年にリニューアルが実施されていて、共用廊下LEDや貸室の扉をはじめとした内装が綺麗に保たれております。エントランスホールやエレベーターホールの格式高いデザインが特徴的です。フリーアクセスの床を採用しており、駐車場の利用が可能ですので、社用車を使用する場合には便利です。徒歩圏内にコンビニエンスストア、郵便局がございます。
大成大手町ビルは大手町駅(A5番出口)の他に東京駅(出口1)徒歩5分、三越前駅(B1番出口)徒歩8分で利用も可能です。

近隣のエリア・駅から探す