大成大手町ビルのテナント募集中区画
…新着物件
アクセス
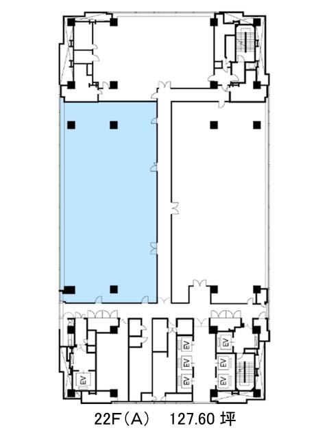
大成大手町ビルの物件情報
大成大手町ビル(千代田区大手町)は大手町駅(A5番出口)から徒歩1分の賃貸オフィスです。
1994年竣工で、地上27階の新耐震基準に適合したビルでございます。2011年にリニューアルが実施されていて、共用廊下LEDや貸室の扉をはじめとした内装が綺麗に保たれております。エントランスホールやエレベーターホールの格式高いデザインが特徴的です。フリーアクセスの床を採用しており、駐車場の利用が可能ですので、社用車を使用する場合には便利です。徒歩圏内にコンビニエンスストア、郵便局がございます。
大成大手町ビルは大手町駅(A5番出口)の他に東京駅(出口1)徒歩5分、三越前駅(B1番出口)徒歩8分で利用も可能です。

