大手町ビルのテナント募集中区画
…新着物件
アクセス
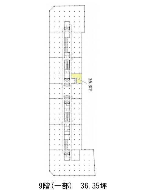
大手町ビルの物件情報
大手町ビル(千代田区大手町)は大手町駅(A5番出口)から徒歩2分の賃貸オフィスです。1958年竣工、駅直結でアクセス抜群、9階建てのビルです。エントランスホールの支柱には細かなデザインが施されており、天井や床のデザイン性も高いです。貸室内はフリーアクセスの床を採用しているため、床下に配線を収納することができます。男女別のトイレ設置は嬉しいポイントです。駐車場の併設有ため、社用車を使用する場合には便利でしょう。ビルの地下にはコンビニエンスストア、飲食店が営業されており、ランチやちょっとした買い物にも困ることはありません。大手町ビルは大手町駅(A5番出口)の他に東京駅(出口1)徒歩6分、三越前駅(B1番出口)徒歩8分で利用も可能です。

