8階は現在募集がありません
4フロア募集区画あり

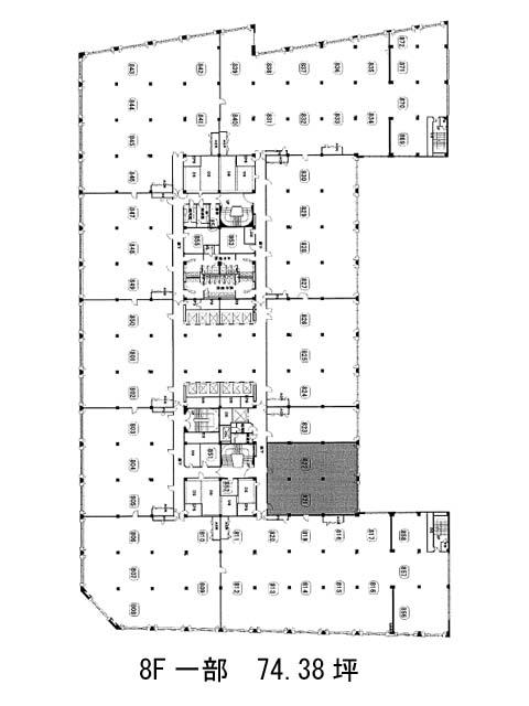
新大手町ビル 8階

前の写真 次の写真

物件概要

物件番号

419-00017-280

物件名

新大手町ビル

所在地

面積

74.38坪

賃料(共益費含)


入居日

募集終了

保証金

礼金

更新料

償却費

竣工

1958年12月

構造

規模

地上10階/地下3階

トイレ

男女別

空調

個別空調

エレベーター

セキュリティ

駐車場

耐震

旧耐震基準

基準階天井高

空室延床面積

704.53坪

最寄駅

情報更新日

2026/01/16

新大手町ビルのテナント募集中区画

階数 面積 賃料(共益費含む) 保証金 入居可能日 検討リスト 詳細
2 72.12坪 応相談(応相談) 応相談 2027年3月上旬
2 37.39坪 応相談(応相談) 応相談 2026年3月上旬
5 109.78坪 応相談(応相談) 応相談 2027年4月上旬
5 485.24坪 応相談(応相談) 応相談 2027年4月上旬
…新着物件

アクセス

新大手町ビルの物件情報

新大手町ビル(千代田区大手町)は大手町駅(B3番出口)から徒歩1分の賃貸オフィスです。
1958年竣工ですが、2001年にリニューアルが実施されており、ビル全体のメンテナンスが行き届いています。エントランスホールやエレベーターホール、内階段は明るい雰囲気で、貸室は中央のエレベーターホールを囲うような形になっています。貸室内はフリーアクセスフロアとなっているので、自由に配線を組んでデスクやOA危機を設置することができます。1階部分にはコンビニエンスストアやカフェが営業していて便利です。
新大手町ビルは大手町駅(B3番出口)の他に東京駅(14番出口)徒歩3分、日本橋駅(A1番出口)徒歩7分で利用も可能です。

近隣のエリア・駅から探す