東神田ビル 7階新着
物件概要
物件番号
421-00111-60物件名
東神田ビル所在地
- 東京都千代田区東神田2-6-5
- アクセスマップ
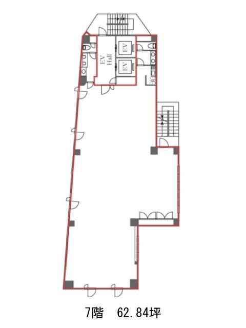
面積
62.84坪賃料(共益費含)
:応相談応相談
入居日
2026年8月上旬保証金
応相談礼金
なし更新料
なし償却費
なし竣工
1991年8月構造
S造規模
地上8階/地下1階トイレ
男女別空調
個別空調エレベーター
有セキュリティ
有駐車場
無耐震
新耐震基準基準階天井高
2600mm空室延床面積
62.84坪情報更新日
2026/03/02東神田ビルのテナント募集中区画
| 階数 | 面積 | 賃料(共益費含む) | 保証金 | 入居可能日 | 検討リスト | 詳細 |
|---|---|---|---|---|---|---|
| 7 | 62.84坪 | 応相談(応相談) | 応相談 | 2026年8月上旬 |
…新着物件
東神田ビルのアクセス
東神田ビルの物件情報
東神田ビル(千代田区東神田)は馬喰町駅(4番出口)から徒歩5分の賃貸オフィスです。1991年竣工、地上8階建てS造のビルです。重厚感のある石造りの部分とガラス張り部分のある、デザイン性の高い外観をしています。各階(2~7階)面積は68.74坪。中規模のテナントをお探しの方に良いでしょう。EV2基・駐車場・機械警備・個別空調・OAフロア・男女別トイレといった充実の設備仕様をしています。間取りは支柱が中央に無い為、レイアウトがしやすいでしょう。1階は事務所の他・店舗としての使用が可能です。東神田ビルは馬喰町駅(4番出口)の他に岩本町駅(A4番出口)徒歩6分、浅草橋駅(西口)徒歩7分で利用も可能です。

