18階は現在募集がありません
1フロア募集区画あり

日比谷ダイビル 18階

前の写真 次の写真

物件概要

物件番号

422-00001-150

物件名

日比谷ダイビル

所在地

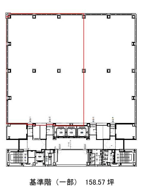
面積

158.57坪

賃料(共益費含)


入居日

募集終了

保証金

礼金

更新料

償却費

竣工

1989年10月

構造

SRC

規模

地上21階/地下3階

トイレ

男女別

空調

セントラル

エレベーター

セキュリティ

駐車場

耐震

新耐震基準

基準階天井高

2630mm

空室延床面積

236.56坪

最寄駅

情報更新日

2026/05/07

日比谷ダイビルのテナント募集中区画

階数 面積 賃料(共益費含む) 保証金 入居可能日 検討リスト 詳細
19 236.56坪 応相談(応相談) 応相談 2026年10月
…新着物件

日比谷ダイビルのアクセス

日比谷ダイビルの物件情報

日比谷ダイビル(千代田区内幸町)は内幸町駅(出口)から徒歩2分の賃貸オフィスです。
外観はグレーを基調としたタイル張りの地上21階・地下3階建ての大型高層ビルです。周辺には日比谷公会堂、帝国ホテルなど歴史的建造物が多くある日比谷・国会通り近くに立地しており外壁に以前の大阪ビル東京分館の1号館時代の外壁についていた獣面のテラコッタが移設されており、歴史と格式を感じさせる建物となっています。室内もハイグレードな仕様に仕上がっており、フリーアクセスや250坪を超えるフロアはレイアウトしやすい長方形の空間となっております。また有人・機械警備が併用され、24時間常駐なのでセキュリティ面でも大変安心できるでしょう。
日比谷ダイビルは内幸町駅(出口)の他に日比谷駅(A13番出口)徒歩5分、新橋駅(7番出口)徒歩5分で利用も可能です。

近隣のエリア・駅から探す