5階は現在募集がありません

日土地内幸町ビル 5階

前の写真 次の写真

物件概要

物件番号

422-00013-81

物件名

日土地内幸町ビル

所在地

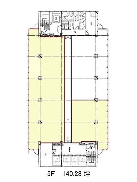
面積

140.28坪

賃料(共益費含)


入居日

募集終了

保証金

礼金

更新料

償却費

竣工

1974年7月

構造

SRC

規模

地上11階/地下2階

トイレ

男女別

空調

セントラル

エレベーター

セキュリティ

駐車場

耐震

旧耐震基準

基準階天井高

2500mm

空室延床面積

最寄駅

情報更新日

2024/07/02

日土地内幸町ビルのテナント募集中区画

現在、空室がございません。

アクセス

日土地内幸町ビルの物件情報

日土地内幸町ビル(千代田区内幸町)は内幸町駅(出口)から徒歩1分の賃貸オフィスです。
1974年に竣工され、地上11階・地下2階建て、外観はグレーを基調とした全面ガラス張りの非常に重厚感のあるオフィスビルです。室内はエレベーター4基、フリーアクセス完備、男女別トイレでウォシュレットも付いた清潔感のある洗面空間となっております。セキュリティ面では有人警備と機械警備が併用されているため、大変安心です。また日比谷通りと国会通りの交差点角地に立地しており、窓からの眺望はとても良いでしょう。近隣施設には銀行やコンビニ、飲食店などが点在しているほか、日比谷公園がありランチ休憩でリフレッシュも可能な大変魅力的な環境にあります。
日土地内幸町ビルは内幸町駅(出口)の他に日比谷駅(A13番出口)徒歩5分、霞ケ関駅(C4番出口)徒歩5分で利用も可能です。

近隣のエリア・駅から探す