15階は現在募集がありません
内幸町平和ビル 15階
物件概要
内幸町平和ビルのテナント募集中区画
現在、空室がございません。
アクセス
内幸町平和ビルの物件情報
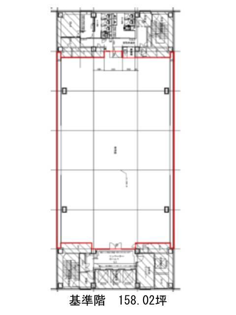
内幸町平和ビル(千代田区内幸町)は内幸町駅(出口)から徒歩4分の賃貸オフィスです。1989年竣工、地上20階地下2階建ての鉄骨鉄筋コンクリート造です。大通りに面しているかなり高いビルなので存在感があり視認性が高いといえるでしょう。2007年にはリニューアルを行なっており清潔感があり快適な環境です。主な設備面としてはOAフロア、男女トイレ別、個別空調、機械警備、エレベーターは3基完備されています。また駐車場もあるので車でのアクセスにも便利です。基準階面積は約158坪と圧倒的広さを誇っており無柱空間のため広々とした環境でしょう。内幸町平和ビルは内幸町駅(出口)の他に新橋駅(7番出口)徒歩4分、日比谷駅(A13番出口)徒歩7分で利用も可能です。

