8階は現在募集がありません
九段ウィズビル 8階
物件概要
九段ウィズビルのテナント募集中区画
現在、空室がございません。
アクセス
九段ウィズビルの物件情報
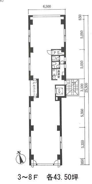
九段ウィズビル(千代田区飯田橋)は九段下駅(7番出口)から徒歩4分の賃貸オフィスです。外観はダークグレーの石造りとミラーガラスで構成されており、シックな印象。1フロア1テナント仕様で、各部屋43.5坪の規模です。エレベーターから室内へはダイレクトイン。男女別トイレと湯沸室は室内にまとめて確保されています。室内は細長い形をしており、中央部分などで間仕切りをすれば分割部屋のようにもご使用頂けそうです。
九段ウィズビルは目白通りに面しており、九段下駅と飯田橋駅からのアクセスは通りを直進するシンプルな道順です。近隣には飲食店が数軒と銀行ATMなどが点在しています。九段ウィズビルは九段下駅(7番出口)の他に飯田橋駅(A5番出口)徒歩6分、神保町駅(A2番出口)徒歩9分で利用も可能です。

