4階 401は現在募集がありません
1フロア募集区画あり

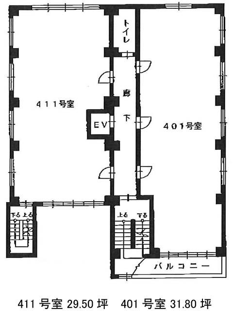
日産ビル 4階 401

前の写真 次の写真

物件概要

物件番号

427-00115-70

物件名

日産ビル

所在地

面積

31.80坪

賃料(共益費含)


入居日

募集終了

保証金

礼金

更新料

償却費

竣工

1961年1月

構造

RC

規模

地上5階

トイレ

男女共用

空調

個別空調

エレベーター

セキュリティ

駐車場

耐震

旧耐震基準

基準階天井高

空室延床面積

35.00坪

最寄駅

情報更新日

2026/04/02

日産ビルのテナント募集中区画

階数 面積 賃料(共益費含む) 保証金 入居可能日 検討リスト 詳細
3 35.00坪 346,500円/月(9,900円/坪) 103万円
…新着物件

日産ビルのアクセス

日産ビルの物件情報

日産ビル(千代田区飯田橋)は飯田橋駅(A4番出口)から徒歩2分の賃貸オフィスです。
日産ビルは飯田橋駅(A4番出口)の他に九段下駅(7番出口)徒歩10分、水道橋駅(西口)徒歩11分で利用も可能です。

近隣のエリア・駅から探す