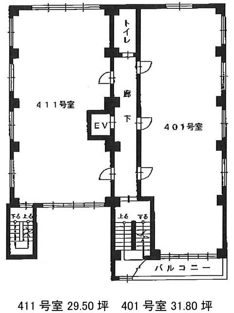
日産ビルのテナント募集中区画
| 階数 | 面積 | 賃料(共益費含む) | 保証金 | 入居可能日 | 検討リスト | 詳細 |
|---|---|---|---|---|---|---|
| 3 | 35.00坪 | 346,500円/月(9,900円/坪) | 103万円 | 即 |
…新着物件
日産ビルのアクセス
日産ビルの物件情報
日産ビル(千代田区飯田橋)は飯田橋駅(A4番出口)から徒歩2分の賃貸オフィスです。日産ビルは飯田橋駅(A4番出口)の他に九段下駅(7番出口)徒歩10分、水道橋駅(西口)徒歩11分で利用も可能です。

