光ビルのテナント募集中区画
| 階数 | 面積 | 賃料(共益費含む) | 保証金 | 入居可能日 | 検討リスト | 詳細 |
|---|---|---|---|---|---|---|
| 3 | 73.00坪 | 1,124,200円/月(15,400円/坪) | 817万円 | 即 |
…新着物件
光ビルのアクセス
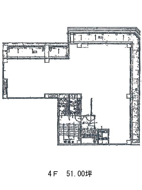
光ビルの物件情報
光ビル(千代田区飯田橋)は九段下駅(7番出口)から徒歩5分の賃貸オフィスです。1985年竣工、新耐震基準を満たした地上6階建ての鉄筋コンクリート造の建物です。白のシンプルなタイルの外壁に、1階部分はたくさんの光を取り入れられるおしゃれなガラスブロックを使用した特徴的なデザインの外観になっています。清潔感のあるエントランスの奥にはエレベーターが1基設置、ビルは24時間利用可能となっており、オートロックも採用されている為、セキュリティ面でも安心といえるでしょう。基準階面積は約73坪(3階まで)、個別空調、光ファイバーが引き込み済み、トイレは男女別となっており、室外に設置されております。目白通りから1本入った角地に立地しており、2面採光を確保、周辺にはコンビニや飲食店、郵便局も近く大変利便性の高い環境です。光ビルは九段下駅(7番出口)の他に飯田橋駅(A5番出口)徒歩6分、水道橋駅(西口)徒歩8分で利用も可能です。

