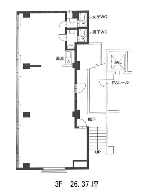
3階は現在募集がありません
福岡ビル 3階
物件概要
福岡ビルのテナント募集中区画
現在、空室がございません。
アクセス
福岡ビルの物件情報
福岡ビル(千代田区飯田橋)は九段下駅(7番出口)から徒歩5分の賃貸オフィスです。福岡ビルは九段下駅(7番出口)の他に飯田橋駅(A5番出口)徒歩6分、神保町駅(A2番出口)徒歩10分で利用も可能です。

