6階は現在募集がありません
2フロア募集区画あり

ヒキタカ飯田橋ビル 6階

前の写真 次の写真

物件概要

物件番号

427-00057-60

物件名

ヒキタカ飯田橋ビル

所在地

面積

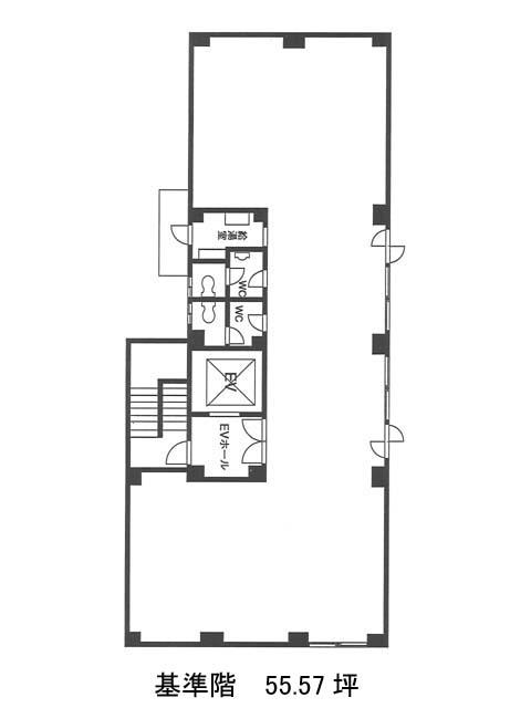
55.57坪

賃料(共益費含)


入居日

募集終了

保証金

礼金

更新料

償却費

竣工

1986年12月

構造

SRC

規模

地上9階

トイレ

男女別

空調

個別空調

エレベーター

セキュリティ

駐車場

耐震

新耐震基準

基準階天井高

空室延床面積

95.80坪

最寄駅

情報更新日

2025/12/19

ヒキタカ飯田橋ビルのテナント募集中区画

階数 面積 賃料(共益費含む) 保証金 入居可能日 検討リスト 詳細
8-9F 57.54坪 応相談(応相談) 応相談
8 38.26坪 応相談(応相談) 応相談
…新着物件

アクセス

ヒキタカ飯田橋ビルの物件情報

ヒキタカ飯田橋ビル(千代田区飯田橋)は飯田橋駅(A5番出口)から徒歩4分の賃貸オフィスです。
目白通り近くの神田川沿いに立地しています。外観は、サーモンピンクのタイル張りで四角い窓がポップな印象の明るい雰囲気のあるビルです。ビルの向かいには中央線が走り、周辺にはコンビニ、飲食店が点在しているため休憩時間の食事場所に困ることはなさそうです。室内には男女別のトイレ、給湯室があり、機械警備も導入しているので快適・安心です。また、L字型に近い形状ですが無柱空間のため開放感があり、レイアウトは組みやすいでしょう。
ヒキタカ飯田橋ビルは飯田橋駅(A5番出口)の他に水道橋駅(西口)徒歩6分、九段下駅(7番出口)徒歩12分で利用も可能です。

近隣のエリア・駅から探す