ヒキタカ飯田橋ビル 8-9F
物件概要
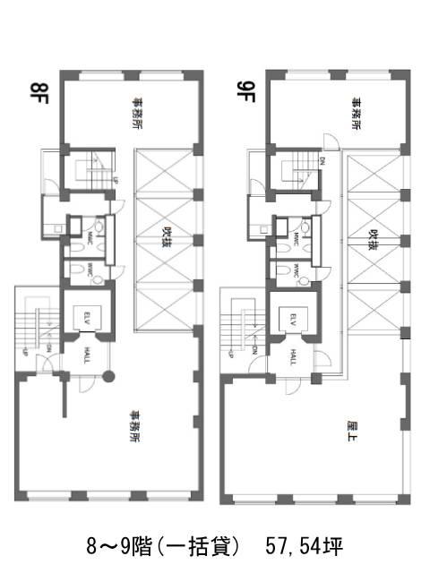
ヒキタカ飯田橋ビルのテナント募集中区画
| 階数 | 面積 | 賃料(共益費含む) | 保証金 | 入居可能日 | 検討リスト | 詳細 |
|---|---|---|---|---|---|---|
| 8-9F | 57.54坪 | 応相談(応相談) | 応相談 | 即 | ||
| 8 | 38.26坪 | 応相談(応相談) | 応相談 | 即 |
…新着物件
アクセス
ヒキタカ飯田橋ビルの物件情報
ヒキタカ飯田橋ビル(千代田区飯田橋)は飯田橋駅(A5番出口)から徒歩4分の賃貸オフィスです。目白通り近くの神田川沿いに立地しています。外観は、サーモンピンクのタイル張りで四角い窓がポップな印象の明るい雰囲気のあるビルです。ビルの向かいには中央線が走り、周辺にはコンビニ、飲食店が点在しているため休憩時間の食事場所に困ることはなさそうです。室内には男女別のトイレ、給湯室があり、機械警備も導入しているので快適・安心です。また、L字型に近い形状ですが無柱空間のため開放感があり、レイアウトは組みやすいでしょう。ヒキタカ飯田橋ビルは飯田橋駅(A5番出口)の他に水道橋駅(西口)徒歩6分、九段下駅(7番出口)徒歩12分で利用も可能です。

