6階は現在募集がありません
飯田橋センタービル 6階
物件概要
飯田橋センタービルのテナント募集中区画
現在、空室がございません。
アクセス
飯田橋センタービルの物件情報
飯田橋センタービル(千代田区飯田橋)は飯田橋駅(A5番出口)から徒歩4分の賃貸オフィスです。前面をすっきりと覆うガラス張りの外観が印象的なオフィスビル。ファサードに反射する街並みが美しく、洗練された印象を与えます。エントランス周りには石調の素材があしらわれ、程よく重厚感をプラス。飯田橋エリアの利便性を享受しながらも、しっかりと“品のあるオフィス”を構えたいという企業様におすすめです。
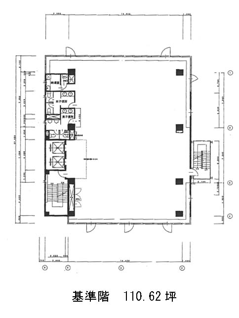
基準階は約110坪の整形空間。OAフロア完備で、ゾーニングや導線の計画もスムーズ。水回りは専用で、執務エリアと分けやすいのもポイントです。
また、近隣には郵便局・コンビニ・飲食店が集積しており、ランチや来客対応、郵送業務もすべて徒歩圏で完結。とくに郵便局の近さは、意外と業務効率に直結する嬉しいメリットです。飯田橋センタービルは飯田橋駅(A5番出口)の他に九段下駅(7番出口)徒歩6分、水道橋駅(西口)徒歩9分で利用も可能です。

