岩見ビルのテナント募集中区画
| 階数 | 面積 | 賃料(共益費含む) | 保証金 | 入居可能日 | 検討リスト | 詳細 |
|---|---|---|---|---|---|---|
| 6 | 41.98坪 | 692,670円/月(16,500円/坪) | 337万円 | 即 |
…新着物件
岩見ビルのアクセス
岩見ビルの物件情報
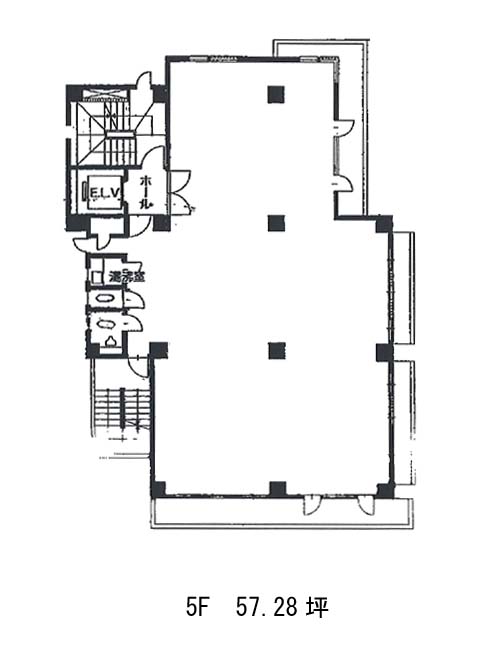
岩見ビル(千代田区飯田橋)は飯田橋駅(A5番出口)から徒歩3分の賃貸オフィスです。目白通りから一本中に入った落ち着きある通りの角地にあり、1F部分がベージュ系の目の大きいレンガタイル、2F以上には赤みがかった茶色のレンガタイルが外壁に使われおり、ゴシックで重厚感のある外観が特徴です。室外には男女別トイレ、給湯室があり快適に過ごせます。室内はほぼ長方形で柱がありますが、床はフリーアクセスのためレイアウトはしやすいでしょう。周辺は飲食店が多く、コンビニ・郵便局も近くにあるので便利です。岩見ビルは飯田橋駅(A5番出口)の他に九段下駅(7番出口)徒歩7分、水道橋駅(西口)徒歩10分で利用も可能です。

