ヒューリック飯田橋ビルのテナント募集中区画
| 階数 | 面積 | 賃料(共益費含む) | 保証金 | 入居可能日 | 検討リスト | 詳細 |
|---|---|---|---|---|---|---|
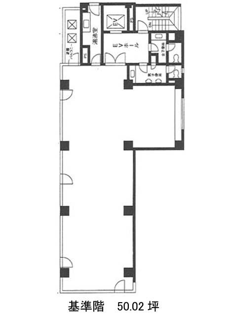
| 3 | 50.02坪 | 応相談(応相談) | 応相談 | 2026年3月上旬 |
…新着物件
アクセス
ヒューリック飯田橋ビルの物件情報
ヒューリック飯田橋ビル(千代田区飯田橋)は飯田橋駅(A5番出口)から徒歩5分の賃貸オフィスです。複数の路線から徒歩圏内に位置するアクセス良好なビルです。1991年竣工と少し古いですが、新耐震基準となっております。支柱がフロア内に設置されていないため、レイアウトは組みやすい形です。大通り沿いに面しており、かつ窓が大きいので入ってくる光は多く、オフィス内を明るく保つことが可能です。男女別のトイレ設置となっており、エレベーターホール1基設置。1階にはテナントとしてコンビニエンスストアが入っており、便利です。ヒューリック飯田橋ビルは飯田橋駅(A5番出口)の他に九段下駅(7番出口)徒歩5分、水道橋駅(西口)徒歩8分で利用も可能です。

