4階は現在募集がありません
1フロア募集区画あり

ヒューリック飯田橋ビル 4階

前の写真 次の写真

物件概要

物件番号

427-00082-62

物件名

ヒューリック飯田橋ビル

所在地

面積

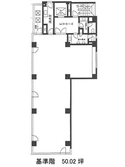
50.02坪

賃料(共益費含)


入居日

募集終了

保証金

礼金

更新料

償却費

竣工

1991年2月

構造

SRC

規模

地上9階/地下1階

トイレ

男女別

空調

個別空調

エレベーター

セキュリティ

駐車場

耐震

新耐震基準

基準階天井高

2500mm

空室延床面積

50.02坪

最寄駅

情報更新日

2026/03/30

ヒューリック飯田橋ビルのテナント募集中区画

階数 面積 賃料(共益費含む) 保証金 入居可能日 検討リスト 詳細
9 50.02坪 応相談(応相談) 応相談 2027年1月上旬
…新着物件

ヒューリック飯田橋ビルのアクセス

ヒューリック飯田橋ビルの物件情報

ヒューリック飯田橋ビル(千代田区飯田橋)は飯田橋駅(A5番出口)から徒歩5分の賃貸オフィスです。
複数の路線から徒歩圏内に位置するアクセス良好なビルです。1991年竣工と少し古いですが、新耐震基準となっております。支柱がフロア内に設置されていないため、レイアウトは組みやすい形です。大通り沿いに面しており、かつ窓が大きいので入ってくる光は多く、オフィス内を明るく保つことが可能です。男女別のトイレ設置となっており、エレベーターホール1基設置。1階にはテナントとしてコンビニエンスストアが入っており、便利です。
ヒューリック飯田橋ビルは飯田橋駅(A5番出口)の他に九段下駅(7番出口)徒歩5分、水道橋駅(西口)徒歩8分で利用も可能です。

近隣のエリア・駅から探す