蚕糸(サンシ)会館のテナント募集中区画
| 階数 | 面積 | 賃料(共益費含む) | 保証金 | 入居可能日 | 検討リスト | 詳細 |
|---|---|---|---|---|---|---|
| 3 | 195.64坪 | 応相談(応相談) | 応相談 | 即 | ||
| 4 | 79.46坪 | 応相談(応相談) | 応相談 | 即 | ||
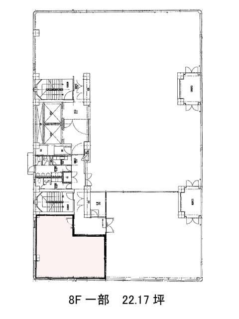
| 5 | 79.59坪 | 応相談(応相談) | 応相談 | 即 |
…新着物件
蚕糸(サンシ)会館のアクセス
蚕糸(サンシ)会館の物件情報
蚕糸(サンシ)会館(千代田区有楽町)は日比谷駅(A8番出口)から徒歩2分の賃貸オフィスです。丸ノ内仲通り沿いの角地に立地しており、グレーとシルバーを基調とした重厚感を漂わせたビルとなっております。1983年に竣工され、新耐震基準を満たした地上10階建の鉄骨鉄筋コンクリート造、基準階が約197坪の大型オフィスです。財団法人大日本蚕糸会の本部ビルで、展示販売施設「ジャパンシルクセンター」も併設されています。フロアはOAフロア・光ファイバーが完備され、個別空調とセントラル空調を併用しています。また周辺には皇居外苑や日比谷公園があるため、落ち着いた環境になっています。蚕糸(サンシ)会館は日比谷駅(A8番出口)の他に有楽町駅(日比谷口)徒歩3分、銀座駅(C1番出口)徒歩5分で利用も可能です。

