地下1階は現在募集がありません
1フロア募集区画あり

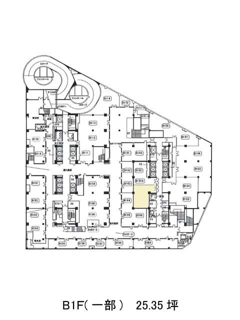
有楽町電気ビルヂング(南館) 地下1階

前の写真 次の写真

物件概要

物件番号

431-00026-376

物件名

有楽町電気ビルヂング(南館)

所在地

面積

25.35坪

賃料(共益費含)


入居日

募集終了

保証金

礼金

更新料

償却費

竣工

1979年3月

構造

規模

地上20階/地下4階

トイレ

男女別

空調

個別空調

エレベーター

セキュリティ

駐車場

耐震

旧耐震基準

基準階天井高

空室延床面積

37.57坪

最寄駅

情報更新日

2026/03/11

有楽町電気ビルヂング(南館)のテナント募集中区画

階数 面積 賃料(共益費含む) 保証金 入居可能日 検討リスト 詳細
5 37.57坪 応相談(応相談) 応相談 2026年7月上旬
…新着物件

有楽町電気ビルヂング(南館)のアクセス

有楽町電気ビルヂング(南館)の物件情報

有楽町電気ビルヂング(南館)(千代田区有楽町)は日比谷駅(A2番出口)から徒歩1分の賃貸オフィスです。
晴海通りに面していて、角地に立地しているビルです。地下鉄3路線が乗り入れる日比谷駅に直結し、有楽町駅からも近い好立地の賃貸事務所物件で南館・北館で構成されています。外観は、縦のラインが印象的な白を基調とした外観です。エンジ色のタイルが敷き詰められた床のエントランスは、落ち着いた雰囲気を感じさせてくれます。募集時期により、坪数、間取りは変わるため、ご確認ください。有楽町電気ビル南館の周辺はオフィス街ですが、一方で飲食店など店舗が豊富なエリアのため、利便性は高いでしょう。
有楽町電気ビルヂング(南館)は日比谷駅(A2番出口)の他に有楽町駅(日比谷口)徒歩3分、銀座駅(C1番出口)徒歩3分で利用も可能です。

近隣のエリア・駅から探す