6階は現在募集がありません
MARK SQUARE 秋葉原 6階


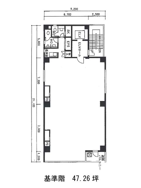
物件概要
MARK SQUARE 秋葉原のテナント募集中区画
現在、空室がございません。
アクセス
MARK SQUARE 秋葉原の物件情報
MARK SQUARE 秋葉原(台東区秋葉原)は末広町駅(1番出口)から徒歩5分の賃貸オフィスです。
MARK SQUARE 秋葉原は末広町駅(1番出口)の他に仲御徒町駅(2番出口)徒歩6分、秋葉原駅(A3番出口)徒歩7分で利用も可能です。