4階は現在募集がありません
TOWA秋葉原ビル 4階
物件概要
TOWA秋葉原ビルのテナント募集中区画
現在、空室がございません。
アクセス
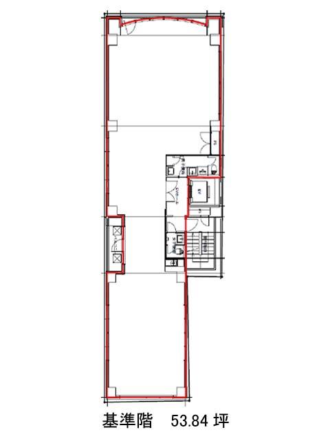
TOWA秋葉原ビルの物件情報
TOWA秋葉原ビル(台東区秋葉原)は仲御徒町駅(2番出口)から徒歩5分の賃貸オフィスです。TOWA秋葉原ビルは仲御徒町駅(2番出口)の他に秋葉原駅(2番出口)徒歩6分、末広町駅(1番出口)徒歩6分で利用も可能です。

