第2三倉ビルのテナント募集中区画
| 階数 | 面積 | 賃料(共益費含む) | 保証金 | 入居可能日 | 検討リスト | 詳細 |
|---|---|---|---|---|---|---|
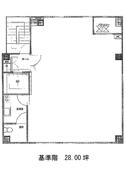
| 4 | 28.00坪 | 446,600円/月(15,950円/坪) | 324万円 | 2026年5月中旬 |
…新着物件
第2三倉ビルのアクセス
第2三倉ビルの物件情報
第2三倉ビル(台東区上野)は湯島駅(4番出口)から徒歩3分の賃貸オフィスです。第2三倉ビルは湯島駅(4番出口)の他に上野広小路駅(A1番出口)徒歩3分、上野御徒町駅(A4番出口)徒歩3分で利用も可能です。

