2階 202は現在募集がありません
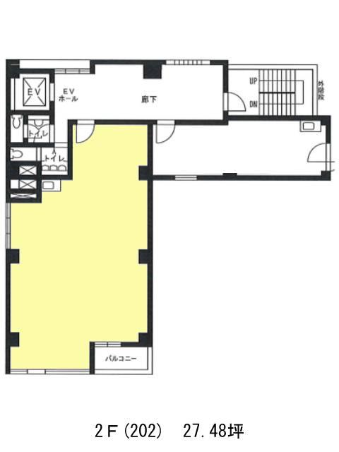
第2オリエントビル 2階 202
物件概要
第2オリエントビルのテナント募集中区画
現在、空室がございません。
アクセス
第2オリエントビルの物件情報
第2オリエントビル(台東区上野)は仲御徒町駅(2番出口)から徒歩2分の賃貸オフィスです。第2オリエントビルは仲御徒町駅(2番出口)の他に御徒町駅(南口)徒歩5分、上野御徒町駅(A6番出口)徒歩5分で利用も可能です。

