2階は現在募集がありません
1フロア募集区画あり

ザボン村上ビル 2階

前の写真 次の写真

物件概要

物件番号

552-00080-30

物件名

ザボン村上ビル

所在地

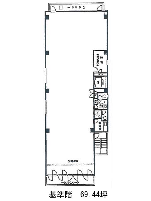
面積

69.44坪

賃料(共益費含)


入居日

募集終了

保証金

礼金

更新料

償却費

竣工

1988年7月

構造

SRC

規模

地上7階/地下1階

トイレ

男女別

空調

個別空調

エレベーター

セキュリティ

駐車場

耐震

新耐震基準

基準階天井高

2450mm

空室延床面積

48.22坪

最寄駅

情報更新日

2026/04/01

ザボン村上ビルのテナント募集中区画

階数 面積 賃料(共益費含む) 保証金 入居可能日 検討リスト 詳細
5 48.22坪 689,546円/月(14,300円/坪) 385万円 相談
…新着物件

ザボン村上ビルのアクセス

ザボン村上ビルの物件情報

ザボン村上ビル(台東区上野)は末広町駅(2番出口)から徒歩3分の賃貸オフィスです。
1988年竣工、地上7階、地下1階建ての鉄骨鉄筋コンクリート造です。2色のコントラストが綺麗な重厚感のあるオフィスビルです。エントランスも石造りとなっており、清潔感を感じられます。大通りがすぐにあるので、コンビニや飲食店に恵まれた周辺環境となっております。募集時期によりますが、約48坪以上、無柱空間の広々としたフロアです。設備面は、個別空調、男女別トイレです。また、OAフロアとなっております。セキュリティは機械警備を導入しております。
ザボン村上ビルは末広町駅(2番出口)の他に仲御徒町駅(2番出口)徒歩7分、上野広小路駅(A1番出口)徒歩7分で利用も可能です。

近隣のエリア・駅から探す