地下1階は現在募集がありません
1フロア募集区画あり

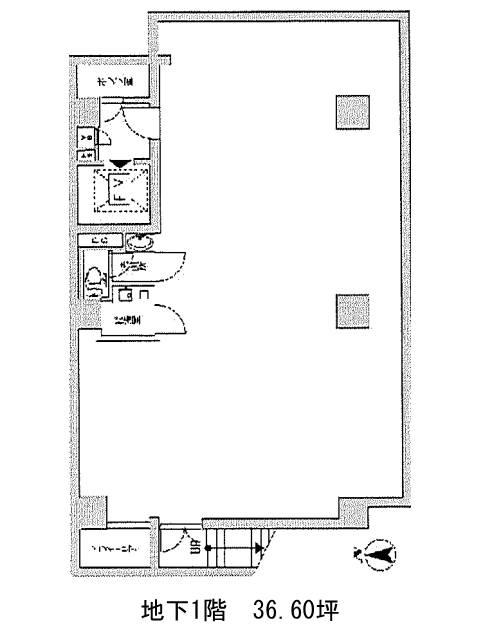
UENO CUBE EXECUTIVE 地下1階

前の写真 次の写真

物件概要

物件番号

552-00090-10

物件名

UENO CUBE EXECUTIVE

所在地

面積

36.67坪

賃料(共益費含)


入居日

募集終了

保証金

礼金

更新料

償却費

竣工

1989年9月

構造

SRC

規模

地上7階/地下1階

トイレ

男女共用

空調

個別空調

エレベーター

セキュリティ

駐車場

耐震

新耐震基準

基準階天井高

空室延床面積

41.68坪

最寄駅

情報更新日

2026/03/11

UENO CUBE EXECUTIVEのテナント募集中区画

階数 面積 賃料(共益費含む) 保証金 入居可能日 検討リスト 詳細
4 41.68坪 605,000円/月(14,515円/坪) 330万円 2026年4月中旬
…新着物件

UENO CUBE EXECUTIVEのアクセス

UENO CUBE EXECUTIVEの物件情報

UENO CUBE EXECUTIVE(台東区上野)は上野広小路駅(A1番出口)から徒歩4分の賃貸オフィスです。
UENO CUBE EXECUTIVEは上野広小路駅(A1番出口)の他に末広町駅(2番出口)徒歩4分、仲御徒町駅(2番出口)徒歩5分で利用も可能です。

近隣のエリア・駅から探す