8階は現在募集がありません
1フロア募集区画あり

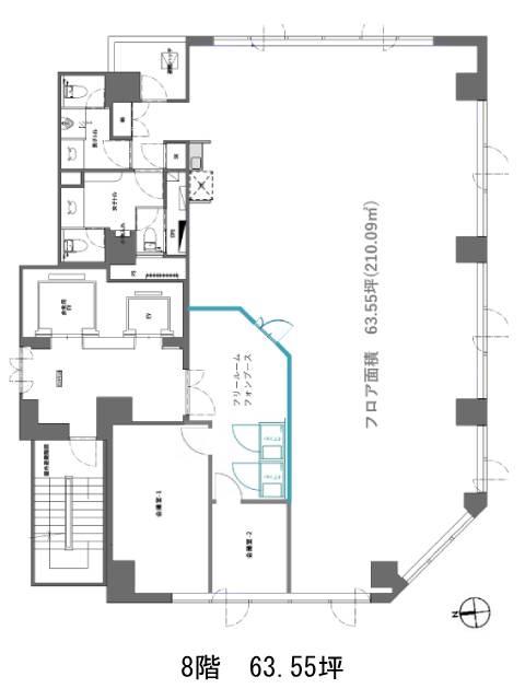
Logran御徒町ビル 8階

前の写真 次の写真

物件概要

物件番号

561-00378-103

物件名

Logran御徒町ビル

所在地

面積

63.55坪

賃料(共益費含)


入居日

募集終了

保証金

礼金

更新料

償却費

竣工

2009年2月

構造

S造

規模

地上11階/地下1階

トイレ

男女別

空調

個別空調

エレベーター

セキュリティ

駐車場

耐震

新耐震基準

基準階天井高

2580mm

空室延床面積

63.55坪

最寄駅

情報更新日

2026/01/15

Logran御徒町ビルのテナント募集中区画

階数 面積 賃料(共益費含む) 保証金 入居可能日 検討リスト 詳細
4 63.55坪 1,537,910円/月(24,200円/坪) 1,207万円 2026年5月上旬
…新着物件

アクセス

Logran御徒町ビルの物件情報

Logran御徒町ビル(台東区台東)は仲御徒町駅(1番出口)から徒歩2分の賃貸オフィスです。
2009年竣工、地上11階建ての鉄骨造(一部鉄筋コンクリート造)です。昭和通りに面しており、角に立地していますので、視認性が高いビルとなっております。駅から近いので、コンビニや銀行等多く、利便性も高いです。室内は約60坪超と広々としており、レイアウトしやすい長方形です。築浅なので綺麗なのはもちろんのこと、OAフロア、男女別トイレ、個別空調、機械警備の導入など、設備面も充実しております。また、駐車場も完備しております。
Logran御徒町ビルは仲御徒町駅(1番出口)の他に御徒町駅(南口)徒歩6分、上野御徒町駅(A6番出口)徒歩6分で利用も可能です。

近隣のエリア・駅から探す