上野パークビル 5階
物件概要
物件番号
565-00178-40物件名
上野パークビル所在地
- 東京都台東区東上野4-2-3
- アクセスマップ
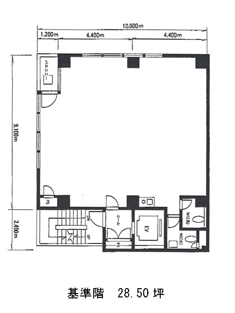
面積
28.50坪賃料(共益費含)
月額548,625円(19,250円/坪)
入居日
2026年1月保証金
3,192,000円礼金
なし更新料
なし償却費
なし竣工
1991年構造
RC規模
地上9階トイレ
男女別空調
個別空調エレベーター
有セキュリティ
有駐車場
無耐震
新耐震基準基準階天井高
空室延床面積
28.50坪情報更新日
2025/11/26上野パークビルのテナント募集中区画
| 階数 | 面積 | 賃料(共益費含む) | 保証金 | 入居可能日 | 検討リスト | 詳細 |
|---|---|---|---|---|---|---|
| 5 | 28.50坪 | 548,625円/月(19,250円/坪) | 319万円 | 2026年1月 |
…新着物件
アクセス
上野パークビルの物件情報
上野パークビル(台東区東上野)は上野駅(1番出口)から徒歩3分の賃貸オフィスです。上野パークビルは上野駅(1番出口)の他に稲荷町駅(1番出口)徒歩5分、京成上野駅(正面口)徒歩8分で利用も可能です。

