8階は現在募集がありません
1フロア募集区画あり

上野パークビル 8階

前の写真 次の写真

物件概要

物件番号

565-00178-60

物件名

上野パークビル

所在地

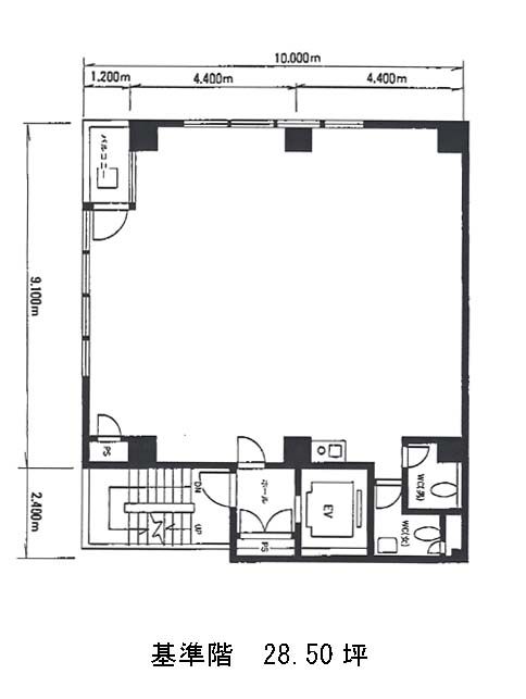
面積

28.50坪

賃料(共益費含)


入居日

募集終了

保証金

礼金

更新料

償却費

竣工

1991年

構造

RC

規模

地上9階

トイレ

男女別

空調

個別空調

エレベーター

セキュリティ

駐車場

耐震

新耐震基準

基準階天井高

空室延床面積

28.50坪

最寄駅

情報更新日

2026/01/15

上野パークビルのテナント募集中区画

階数 面積 賃料(共益費含む) 保証金 入居可能日 検討リスト 詳細
7 28.50坪 548,625円/月(19,250円/坪) 239万円 2026年2月上旬
…新着物件

アクセス

上野パークビルの物件情報

上野パークビル(台東区東上野)は上野駅(1番出口)から徒歩3分の賃貸オフィスです。
上野パークビルは上野駅(1番出口)の他に稲荷町駅(1番出口)徒歩5分、京成上野駅(正面口)徒歩8分で利用も可能です。

近隣のエリア・駅から探す