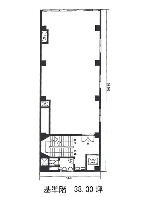
第1吉澤ビルのテナント募集中区画
| 階数 | 面積 | 賃料(共益費含む) | 保証金 | 入居可能日 | 検討リスト | 詳細 |
|---|---|---|---|---|---|---|
| 1 | 28.44坪 | 783,000円/月(27,531円/坪) | 600万円 | 即 |
…新着物件
アクセス
第1吉澤ビルの物件情報
第一吉澤ビル(台東区東上野)は上野駅(出口1)から徒歩1分の賃貸オフィスです。
第一吉澤ビルは上野駅(出口1)の他に京成上野駅(正面口)徒歩6分、上野御徒町駅(A8番出口)徒歩6分で利用も可能です。


