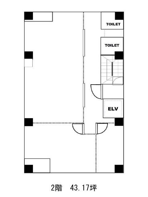
2階は現在募集がありません
小松上野ビル 2階


物件概要
小松上野ビルのテナント募集中区画
現在、空室がございません。
アクセス
小松上野ビルの物件情報
小松上野ビル(台東区北上野)は入谷駅(1番出口)から徒歩7分の賃貸オフィスです。
小松上野ビルは入谷駅(1番出口)の他に稲荷町駅(2番出口)徒歩10分、浅草駅(A2番出口)徒歩11分で利用も可能です。