9階 903は現在募集がありません
1フロア募集区画あり

キャビックビル 9階 903

前の写真 次の写真

物件概要

物件番号

582-00026-43

物件名

キャビックビル

所在地

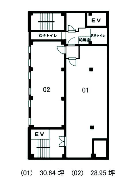
面積

28.95坪

賃料(共益費含)


入居日

募集終了

保証金

礼金

更新料

償却費

竣工

1975年10月

構造

SRC

規模

地上10階/地下1階

トイレ

男女別

空調

個別空調

エレベーター

セキュリティ

駐車場

耐震

旧耐震基準

基準階天井高

空室延床面積

34.71坪

最寄駅

情報更新日

2026/02/13

キャビックビルのテナント募集中区画

階数 面積 賃料(共益費含む) 保証金 入居可能日 検討リスト 詳細
8 34.71坪 458,150円/月(13,200円/坪) 277万円 相談
…新着物件

キャビックビルのアクセス

キャビックビルの物件情報

キャビックビル(大田区山王)は大森駅(北口1)から徒歩2分の賃貸オフィスです。
キャビックビルは大森駅(北口1)の他に大森海岸駅(出口)徒歩12分で利用も可能です。

近隣のエリア・駅から探す